Varsel om reguleringsendring for del av Rundhaug

På vegne av forslagsstiller Askeland Eiendomsutvikling AS blir det varslet endring av reguleringsplan for en avgrenset del av regulering «Rundhaug» planID 200059 i Tysvær kommune, gnr. 71 bnr. 24 mfl.

Varslingen er i henhold til plan- og bygningsloven § 12-14, 2. ledd.

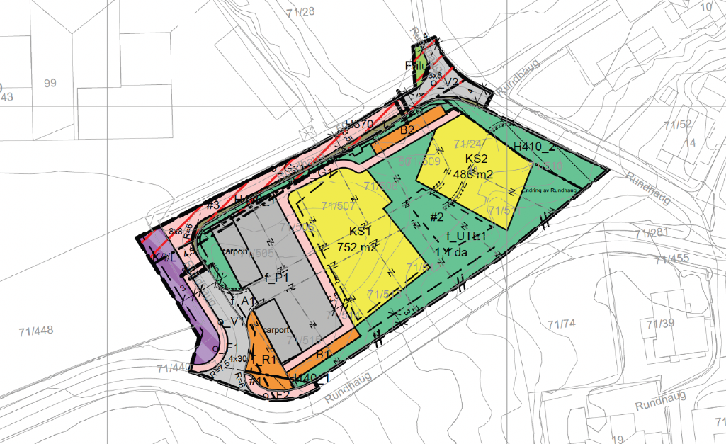
Figur 1: Plankart  - Klikk for stort bildeFigur 1: Plankart «ETTER» Arkipelet AS

1.0 BAKGRUNNEN FOR ENDRINGEN
Forslagsstiller er i gang med utbyggingen av området. I den forbindelse har det dukket opp plassbehov for infrastruktur, samt dukket opp infrastruktur i bakken som ikke var kjent fra før. Området er under utbygging og det viser seg at bodanlegg B2 kommer i konflikt med en høyspentkabel og ny intern infrastruktur, og må flyttes ca. 1 meter lengre sør og ca. 5,6 m lenger øst.

2.0 REGULERINGSENDRINGEN
Hensikten med reguleringsendring iht. PBL § 12-14, 2. ledd er å tilpasse bodanlegg B2 til å ikke komme i konflikt med viktig infrastruktur i bakken. Gangveg f_G1, uteoppholdsareal f_UTE1, KS1 og KS2 justeres noe som følge av ny plassering på bodanlegg. B2 har funksjon som støyskjerm for bebyggelsen, det legges derfor opp til en støyskjerm der boden opprinnelig var plassert for å ivareta støykrav til uteoppholdsareal og bebyggelsen i planområdet. Figur 2 viser tidligere formålsgrenser for B2 og f_G1 samt tidligere støyskjerm med blå strek.

Plankart som viser tidligere formålsgrenser/støyskjerm - Klikk for stort bildeFigur 2: Plankart som viser tidligere formålsgrenser/støyskjerm med blått Arkipelet AS.

Sykkelparkeringen legges til motsatt side av B2 i vest, se Figur 3.

Utomhusplan  - Klikk for stort bildeFigur 3: Utomhusplan etter endring Arkipelet AS

3.0 KOMPLETT PLANMATERIALE OG KONTAKTINFORMASJON
Under følger liste på komplett planmateriale i saken:

- Plankart før (PDF, 164 kB)
- Plankart etter (PDF, 227 kB)
- Revidert utomhusplan (PDF, 2 MB)
- Uttale av akustiker ApiAku (PDF, 263 kB)
- Følgebrev til planendringen (PDF, 5 MB)

Eventuelle merknader til planendringen skal sendes innen 21.11.2025 til:
ARKIPELET AS, Pb 29, 5501 HAUGESUND eller på e-post: mona@arkipelet.no

Det blir gjort oppmerksom på at endring av plan etter plan- og bygningsloven (pbl.) § 12-14 medfører at forslag til endring sendes direkte på uttale, etter en forenklet planprosess. Noe som innebærer at dette er eneste mulighet til å komme med merknad til planendringen. Om det ikke kommer vesentlige merknader, blir endringen behandlet med delegert myndighet fra kommunestyret, jf. pbl. § 12-14 2. ledd.

Ved ytterligere spørsmål kan man henvende seg til kontaktperson Mona Fågelklo, Mob. 41 36 70 96 eller e-post: mona@arkipelet.no